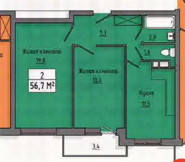
Продается 2-х комн. новостройка, 56.7 кв.м., 2/10 эт
| Стоимость | 7 430 000 |
|---|---|
| Название ЖК | Солянка Парк |
| Стадия строительства | сдан в эксплуатацию |
| Год постройки | 2023 |
| Площадь, кв.м. | 56.7 |
| Жилая площадь | 31 |
| Площадь кухни, кв.м. | 11.5 |
| Этаж | 2 |
| Этажность | 10 |
| Комнат в квартире | 2 |
| Ремонт | Черновая отделка |
| Материал стен | кирпично-монолитный |
| Статус Недвижимости Авито | Квартира |
| Тип продажи Циан | 214-ФЗ |
| Тип парковки | За шлагбаумом во дворе |
| Способ связи avito | По телефону и в сообщениях |
| Тип дома cian | Монолитный |
| Населенный пункт | Курск |
|---|---|
| Район города | Сеймский |
| Улица | улица Энгельса |
| Номер дома | 158 |
2-к. квартира, 56,7 м², 2/10 эт. продаётся в Курске.
Продажа квартир по договору купли-продажи напрямую от застройщика, без дополнительных комиссий.
Двухкомнатная квартира классической планировки с изолированными жилыми комнатами среди множества планировок в сданном монолитно-кирпичном доме со своей котельной ЖК Солянка-парк - напротив автоцентров - в пешей доступности от пляжей р.Сейм, рядом с лесной зоной «Соловьиная роща».
Выдача ключей по факту оплаты.
- автономная котельная
- закрытая дворовая территория
- круглосуточное видеонаблюдение
- смарт планировки квартир
- квартиры с панорамным остеклением
- металлические входные двери в квартиры
В шаговой доступности:
-Спортивно-концертный комплекс
-Гипермаркет «Лента»
-Строительный гипермаркет «Леруа Мерлен»
-Детские сады №37, №88, №97, №115
-Средние общеобразовательные школы №3, №10, №20, №39, №46
-Остановка общественного транспорта
-МФЦ «Мои документы».
Цена квартиры зависит от способа оплаты и от этажа.
Оплата возможна различными способами: наличка, ипотека (базовая, семейная, военная), жилищные сертификаты и субсидии.
Несмотря на то, что дом сдан, возможна рассрочка на 12 мес при первом взносе от 40%.















