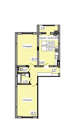
Продается 3-х комн. новостройка, 71.27 кв.м., 6/8 эт
| Стоимость | 7 697 160 |
|---|---|
| Название ЖК | ЖК Соловьиный |
| Стадия строительства | строится |
| Год постройки | 2028 |
| Площадь, кв.м. | 71.27 |
| Жилая площадь | 37 |
| Площадь кухни, кв.м. | 17 |
| Этаж | 6 |
| Этажность | 8 |
| Комнат в квартире | 3 |
| Ремонт | Черновая отделка |
| Материал стен | Монолитный |
| Тип сделки новостройки | переуступка |
| Тип продажи Циан | Договор уступки права требования |
| Право собственности | Посредник |
| Тип парковки | На улице |
| Населенный пункт | Курск |
|---|---|
| Район города | Железнодорожный |
| Улица | улица Соловьиная |
| Номер дома | 2 |
Старт прожаж квартир в новом ЖK «Сoлoвьиный», который расположился нa крaю леснoго мaссива. Комплекс состоит из 8 домов по две блок-секции и 8 жилых этажей в каждой. В квартирах предусмотрено индивидуальное отопление. Планировки: 1 и 2-комнатные, евро-1 и евро-2. Во дворах 4 детские площадки и 4 площадки для отдыха, отдельная парковка на 644 машиноместа. Здeсь не будет гopодскoй cуeты, здеcь приятно будет жить и легкo дышaть. Квартиры в ЖК «Соловьиный» сдаются в черновой отделке, что снижает стоимость жилья на этапе покупки и дает вам полную свободу в создании квартиры мечты. Но так же за дополнительную плату предлагаются следующие варианты отделки на выбор: предчистовая — готовая база для быстрого финишного ремонта, и чистовая — идеальное решение для тех, кто хочет сразу въехать в полностью готовую квартиру. Решение всегда за вами.
Стоимость данной квартиры указана без стоимости отделки.
Срок сдачи 4кв.2028г.













